- Bauherrschaft SBB AG
-
Planungsteam
IG Bhf Seebach, c/o dsp Ingenieure + Planer AG
Gesamtleitung, Tragkonstruktionen - Leistungen Phasen 32 - 53
- Bearbeitung 2023 - 2028
- Baukosten Gesamtkosten CHF 68 Mio., Ingenieurbau CHF 14 Mio.
-
Kenndaten
Kompletter Umbau Gleis- und Bahnhofsanlage
Ersatz Entwässerungsanlage
Neue Perronanlage /neue Perrondächer Personenunterführung, Stützmauern, Lärmschutzwände, Bahndämme
Grundwasser
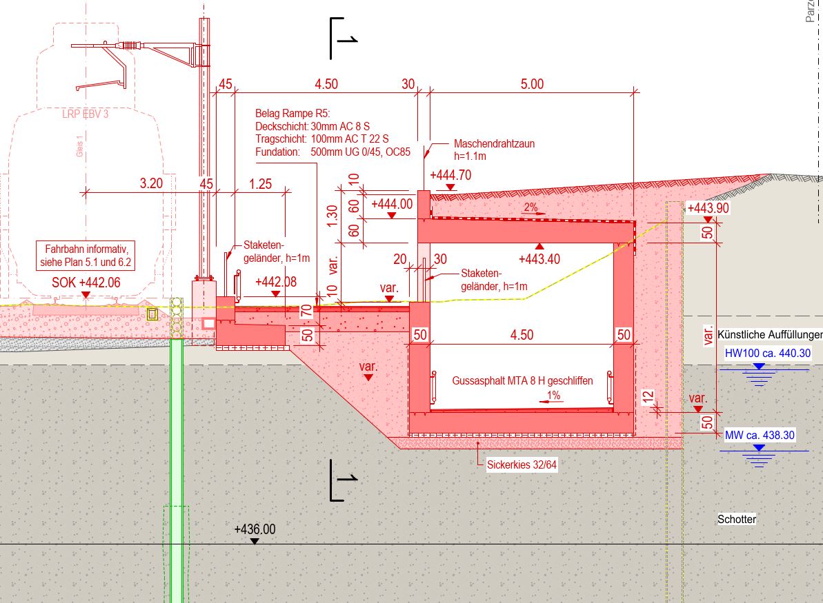
Das Projekt Zürich Seebach. Kreuzungsgleis Güterverkehr und Perronverlängerung sieht vor, das Gleis 1 für die Kreuzung von 750m langen Güterzügen in Zürich Seebach zu verlängern. Zudem erfordert die geplante Angebotserweiterung des ZVV (Taktverdichtung und längere Kompositionen) die Verlängerung des bestehenden 220m langen Perrons auf 320m Nutzlänge und die Realisierung eines neuen Spurwechsels. Die Umstellung auf Linksverkehr in Zürich Seebach bedingt umfangreiche Anpassungen der Gleistopologie. Der bestehende Bahnübergang «Felsenrainstrasse» wird aufgehoben und durch eine Unterführung für den Velo- und Personenverkehr mit Rampen- und Treppenaufgängen ersetzt. Zudem wird der Mittelperron neu mit einer Rampe erschlossen. Der nördliche, unter 2 Gleisen liegende Teil der Unterführung wird neben den Gleisen vorfabriziert und im Rahmen einer Wochenendsperre eingeschoben. Der Bau des südlichen Teiles, welcher 3 Gleise unterquert, erfolgt während einer Totalsperre über wenige Wochen. Für den Bau der Aufgänge sind rückverankerte oder gegenseitig gespriesste Baugrubenabschlüsse im Grundwasser in nächster Nähe zum Gleis notwendig.
Zur Schaffung von Platz für das Kreuzungsgleis muss ein Widerlager einer bestehenden Strassenüberführung mittels Mikropfählen unterfangen und umfangreiche Stützmauern erstellt werden. Weiter sind Bahndämme anzuschütten und neue Lärmschutzwände zu bauen.